HPM Homes Unveils Four New Hawaiʻi Home Models: Liʻiliʻi, Kehalani, Kainani and Anuhea
HPM Homes is excited to unveil four stunning new home models that embody the company's commitment to making homeownership attainable for Hawaiʻi
On the HPM Blog, our goal is to be your guide through the entire home building process.
You’ll find remodeling tips, design inspiration, advice on working with pros, DIY projects and more!
HPM Homes is excited to unveil four stunning new home models that embody the company's commitment to making homeownership attainable for Hawaiʻi residents.
These four offerings - the Liʻiliʻi, Kehalani, Kainani and Anuhea are small footprint homes that suit those looking for minimalistic living or adding an additional home on their property. The Li'ili'i and Kehalani efficiency dwellings are the first two studio models released by HPM. The Kainani and Anuhea are compact single bed and bath home models, expanding HPM Homes small footprint options. Whether you're a small family seeking a minimalistic lifestyle or looking to add an ʻohana unit or ADU to your property, these new HPM Homes models have something to suit your needs.
All models are pre-approved designs that significantly streamline the building process on Hawaiʻi Island, saving valuable time and reducing the stress often associated with new home construction. These models are designed to provide simple and comfortable living while offering the advantage of expedited permitting and proven architectural plans with low-wind zone options.
With pre-approved plans in hand, you can focus on building your dream home rather than navigating complex approval processes. Every HPM pre-approved home design has been thoroughly reviewed and approved by the County of Hawaii Building Division, creating a simplified path through the often lengthy and complex permitting process. This pre-approval status delivers substantial time savings even as you progress through other County department requirements, getting you into your new home faster and more efficiently than the standard permitting process.
These models are also available statewide and would be submitted through your county's standard permitting process. Love these floorplans, but want to make a few slight modifications? Not a problem! Speak with your Home Planning Consultant to discuss how we can make the floorplans work better for your family. Just remember that if you're on Hawaiʻi Island, this would disqualify any pre-approval designation.
Let's take a closer look at each of these captivating new and refreshed home options.
Liʻiliʻi - Kehalani - Kainani - Anuhea
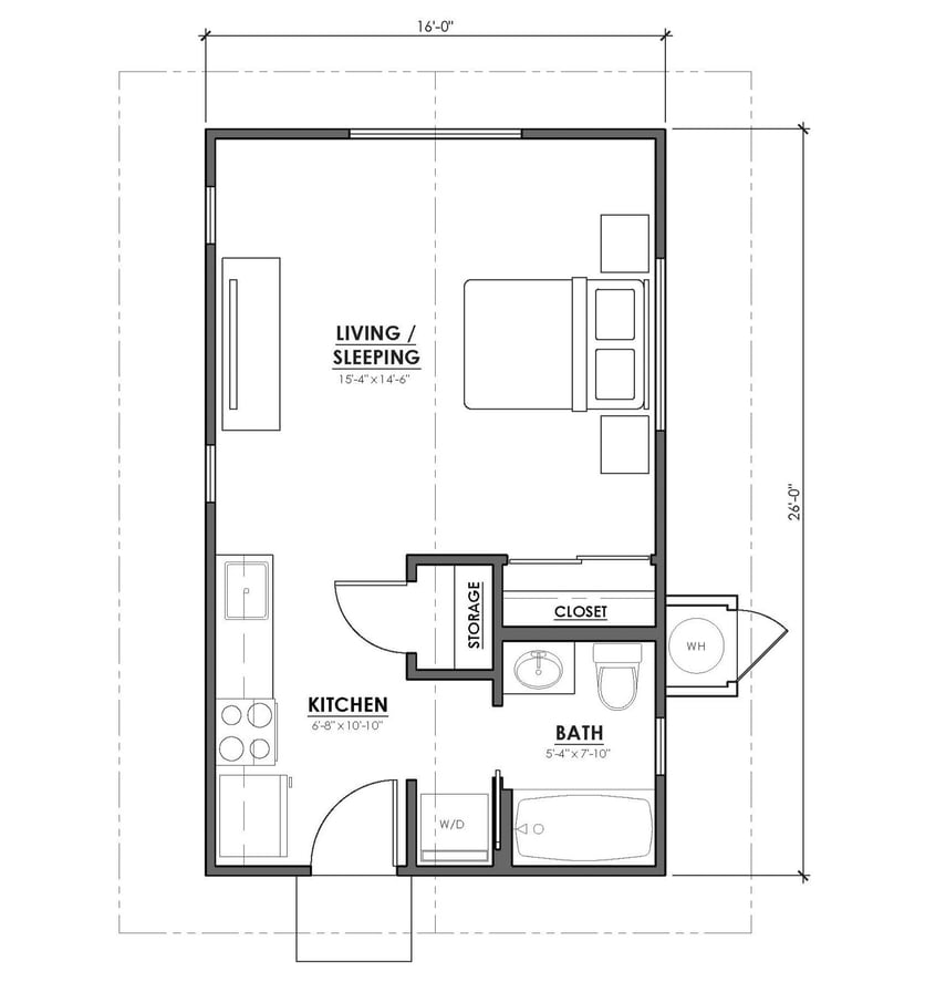
Discover the Liʻiliʻi, an affordably priced studio home perfectly suited for your simplistic Hawaiʻi lifestyle. With 480 sq. ft. of living space and an open-concept design, the Liʻiliʻi blends functionality and simplicity.
The Kehalani home is a thoughtfully designed studio that proves good things come in compact packages. With 416 sq. ft. of living space it has everything you need with a combined living and sleeping area, full bathroom and a functional kitchen area.
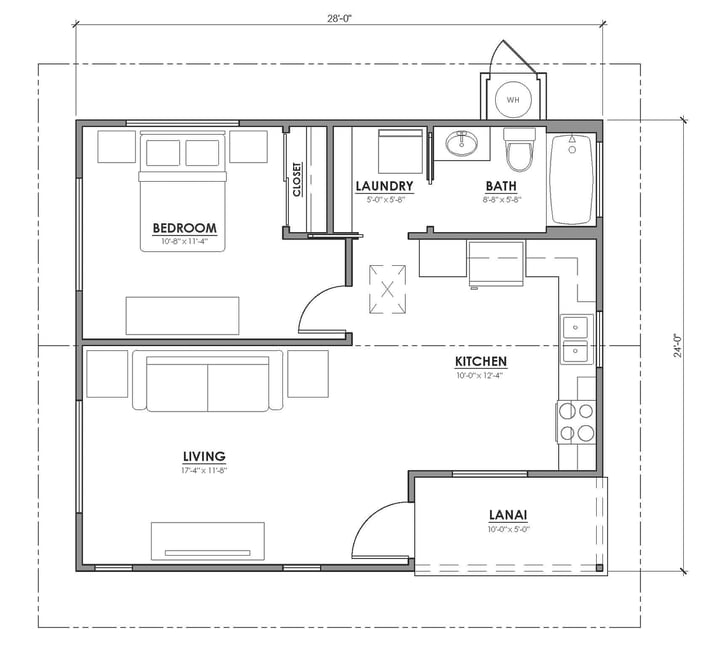
Ideal for single occupants or couples, the Kainani home model offers an open-concept design that seamlessly integrates the kitchen and living area. This 1-bedroom, 1-bathroom home offers a generous living area with a 672 sq. ft. layout. As an ADU, this home model is perfect for those looking to bring their ʻohana home while maintaining privacy.
The Anuhea home model is perfect for those looking for minimalistic living without sacrificing comfort. With 528 total sq. ft., this 1-bedroom, 1-bathroom home seamlessly blends the kitchen and living area. As an ADU, this model can be added to an existing property for those looking for a little bit of extra space or privacy for extended family.
Whether you're drawn to the simplicity and open-concept layouts of our first ever studio models, the Liʻiliʻi and Kehalani, or the simple 1-bedroom layouts including the Kainani and Anuhea, HPM Homes is excited to share these thoughtfully designed solutions for simple lifestyles. Each model reflects our deep understanding of Hawaiʻi living and our commitment to quality craftsmanship and affordable housing.
Ready to find your perfect home? Visit any HPM Homes location to explore detailed floor plans, discuss modification options (for non-pre-approved floorplans), or start your journey toward homeownership. Our experienced team is here to help you choose the ideal home for your family's needs and dreams.
|
Interested in an HPM Home? Visit a Home Design Center or contact an HPM Home Planning Consultant to start your home-building journey today. Hilo: (808) 319-2249 | Waimea & Kona: (808) 762-6246 | Kauaʻi, Oʻahu & Maui: (808) 727-1039
|
HPM Homes is excited to unveil four stunning new home models that embody the company's commitment to making homeownership attainable for Hawaiʻi
At HPM, we believe that true organizational success stems from the personal growth and well-being of each owner-employee. Our Conscious Leadership
HPM Homes is excited to unveil three stunning new home models that embody the company's commitment to creating spaces that enhance the lives of
This article has been updated as of November 2024
Expert guide to HPM's pre-approved home plans, wind zone considerations, and cost-saving
Drumroll, please! After much planning and consideration, we have some exciting news to share about HPM Hilo. Starting November 6th, we will begin
Keep updated with the Latest News, Products, Deals and More!
© 2018 HPM BUILDING SUPPLY. ALL RIGHTS RESERVED
Receive the latest in HPM news, products, exclusive deals and more!
> Sign me up!©2023 HPM BUILDING SUPPLY | HOME PLANS, MATERIALS ALL RIGHTS RESERVED.

Copyright © 2022 HPM Building Supply. All Rights Reserved.